VILLA AL GREZZO in VENDITA a LOREGGIA*IMMERSA nel VERDE
Rif.V265 | 250 mq | camere: 3 | bagni: 2 | € 249.000
Descrizione
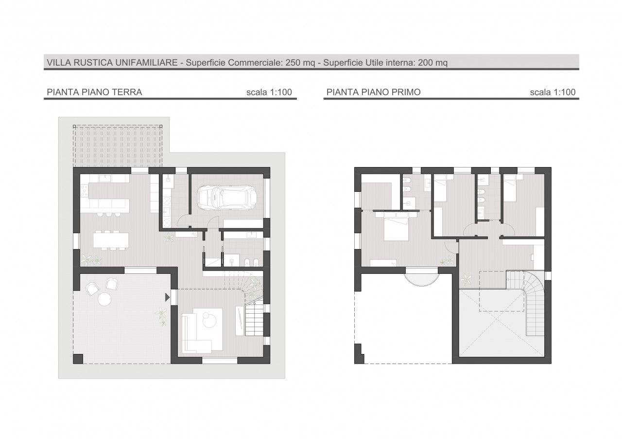
LOREGGIA. Scoprite la vostra oasi di tranquillità con questa ampia villa contemporanea immersa nella natura, proposta al 'GREZZO' su un lotto di terreno di circa 1000 mq. Questa splendida proprietà si sviluppa su due piani fuori terra per un totale di ben 250 mq commerciali e vanta un affascinante portico esterno che amplifica lo spazio vivibile all'aperto.
Il progetto attuale prevede la creazione di due appartamenti indipendenti: uno al piano terra ed uno al primo piano, entrambi dotati di ingresso autonomo. Tuttavia, l'immobile può essere facilmente trasformato in una spaziosa villa singola secondo le vostre esigenze abitative personali.
Questa è una straordinaria opportunità per chi ama il contatto diretto con la natura pur desiderando rimanere vicini ai comfort del centro paese. La posizione della casa consente facile accesso a tutte le comodità necessarie quotidianamente, rendendo questo immobile perfetto sia come residenza principale che come rifugio lontano dal caos cittadino.
Classe energetica da attribuirsi poiché trattasi di abitazione in costruzione. Il prezzo richiesto è €. 249.000,00 (Rif. V265).
In ottemperanza alla normativa vigente sulla privacy, ci teniamo a precisare che l'indirizzo riportato nell'annuncio e nella mappa sono puramente indicativi e non corrispondono all'esatta ubicazione dell'immobile.
Contattateci se interessati al sopralluogo di questo immobile o semplicemente per ulteriori informazioni, per valutare altre proposte visitate il nostro sito web.
Dettagli
| Prezzo: | € 249.000 |
| Metri quadri: | 250 mq |
| bagni: | 2 |
| camere: | 3 |
| Classe energetica: |
I.P.E. n.s. |
| poggioli/balconi: | 1 |
| posto auto: | 4 |
| ripostigli: | 2 |
| totale piani: | 2 |
Ambienti: | |
Comfort: | |
Livelli: | |
| Comune: | Loreggia |
| Indirizzo: | via guizze alte |
| Data inserimento: | |
| Data ultima modifica: | |


























